ДОМ СДА! ВИДОВАЯ! ЖК Оазис Продам 2 комн квартиру 65.5 м2 КАРАВАН AB $33 100

ДОМ СДА! ВИДОВАЯ! ЖК Оазис Продам 2 комн квартиру 65.5 м2 КАРАВАН AB

Харків, Харківська область
1 березня 2025 №312105
ДОМ СДА! ВИДОВАЯ! ЖК Оазис Продам 2 комн квартиру 65.5 м2 КАРАВАН AB Харків - зображення 1
ДОМ СДА! ВИДОВАЯ! ЖК Оазис Продам 2 комн квартиру 65.5 м2 КАРАВАН AB Харків - зображення 2
ДОМ СДА! ВИДОВАЯ! ЖК Оазис Продам 2 комн квартиру 65.5 м2 КАРАВАН AB Харків - зображення 3
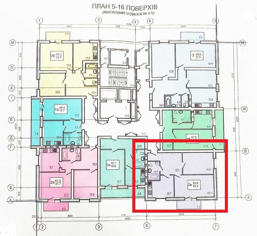
ДОМ СДА! ВИДОВАЯ! ЖК Оазис Продам 2 комн квартиру 65.5 м2 КАРАВАН AB Харків - зображення 4
ДОМ СДА! ВИДОВАЯ! ЖК Оазис Продам 2 комн квартиру 65.5 м2 КАРАВАН AB Харків - зображення 5
Кімнат:
Загальна площа: 65.5 м²
Поверх: 10 
Поверховість: 16 
Опалення: Центральне 
Назва ЖК: Оазис  
ID: 878421431 
ЖК Оазис, Метро Салтовская (Героев Труда) р-н Салтовка, Журавлёвка, ЛУЧШЕЕ ПРЕДЛОЖЕНИЕ!

ПРИСВОЕН ПОЧТОВЫЙ АДРЕС, МОЖНО ПОЛУЧАТЬ ДОКУМЕНТЫ!
Комплекс в природной зоне, своя инфраструктура! ДОМ СДАН! РАБОТАЮТ ЛИФТЫ!

Продам 2 комнатную квартиру S=66 м2
Квартира в строительном состоянии, фасад утеплён минеральной ватой РЯДОМ СКОМПЛЕКСОМ ХОРОШО РАЗВИТА ИНФРАСТРУКТУРА! ЕСТЬ ВСЁ НЕОБХОДИМОЕ ДЛЯ КОМФОРТНОЙ ЖИЗНИ!
Застройщик комплекса АО ЖИЛСТРОЙ-1

Полное сопровождение сделки, до получения документов на руки!
Показ в удобное для вас время!
Евгений Беседин
Був у мережі 24 вересня 2025 10:00
Увійдіть або зареєструйтесь щоб залишити коментар.
$33 100
Зворотний дзвінок Связаться
Евгений Беседин
Був у мережі 24 вересня 2025 10:00
Наверх