Продаж двоповерхової квартири 82 м2 ЖК «Победы 2» $47 000

Продаж двоповерхової квартири 82 м2 ЖК «Победы 2»

Харків, Харківська область
7 квітня 2025 №325128
Продаж двоповерхової квартири 82 м2 ЖК «Победы 2» Харків - зображення 1
Продаж двоповерхової квартири 82 м2 ЖК «Победы 2» Харків - зображення 2
Продаж двоповерхової квартири 82 м2 ЖК «Победы 2» Харків - зображення 3
Продаж двоповерхової квартири 82 м2 ЖК «Победы 2» Харків - зображення 4
Кімнат:
Загальна площа: 82 м²
Поверх:
Поверховість:
Опалення: Центральне 
Назва ЖК: Победы 2  
ID: 883178496 
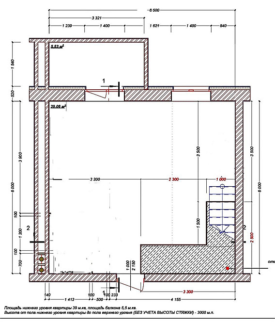
Продаж 2-х рівневої квартири ЖК «Победы 2» в будівельному стані з видом на ліс. 9 поверх 41 м2 та 10 технічний поверх 41 м2. Виконано офіційний проект отвору ЖС-1 у перекритті між поверхами. На етапі будівництва на технічному поверсі закладені перемички вікон під плиту перекриття, що надає можливість зробити повноцінні панорамні вікна та відкритий балкон на 10 поверсі. У квартиру заведено труби опалення більшого діаметру для якісної подачі центрального опалення на 10 поверх. Можливість зробити санвузол на кожному рівні. Перегородки не робились, цегла складна. Можливість робити будь-яке планування, залежно від ваших уподобань та потреб.
Олексій
Був у мережі 24 вересня 2025 10:00
Увійдіть або зареєструйтесь щоб залишити коментар.
$47 000
Зворотний дзвінок Связаться
Олексій
Був у мережі 24 вересня 2025 10:00
Наверх