Апарт Комплекс Пуща Водиця. Квітки Цісик 32. 3К - 77м. Видова. $65 500

Апарт Комплекс Пуща Водиця. Квітки Цісик 32. 3К - 77м. Видова.

вул. Квітки Цісик 32, Київ, Київська область на мапі
18 січня 2024 №45376
Апарт Комплекс Пуща Водиця. Квітки Цісик 32. 3К - 77м. Видова. Київ - зображення 1
Апарт Комплекс Пуща Водиця. Квітки Цісик 32. 3К - 77м. Видова. Київ - зображення 2
Апарт Комплекс Пуща Водиця. Квітки Цісик 32. 3К - 77м. Видова. Київ - зображення 3
Апарт Комплекс Пуща Водиця. Квітки Цісик 32. 3К - 77м. Видова. Київ - зображення 4
Кімнат:
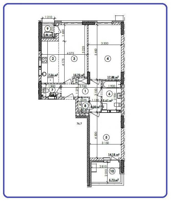
Загальна площа: 76 м²
Поверх:
Поверховість:
Опалення: Центральне 
Назва ЖК: Пуща Водиця  
ID: 804306337 
Продаж квартири в ЖК Апарт Комплекс Пуща Водиця, що розташований за адресою вул. Квітки Цісик 32.

Будинок повністю збудовано і введено в єксплуатацію в 21 році.

На сьогодні йдуть ремонти і триває активне заселення.

Квартира розташована на четвертому поверсі пяти поверхового будинку.
В квартирі чистова стяжка підлоги.
Повністю розведена теплова мережа.
Заведені всі мережі, та комунікацфї.
Передбачено можливість лічильників тепла, холодної води та електрики.

Перегляд можливий, ключі на руках.
Якщо є додаткові питання, телефонуйте.
З радістю вам допоможемо.
Олексій
Був у мережі 24 вересня 10:00
Коментарі до цього оголошення закриті
Расположение
вул. Квітки Цісик 32, Київ, Київська область
Наверх