Двокімнатна квартира в Києві, Деснянський район $25 250

Двокімнатна квартира в Києві, Деснянський район

Київ, Київська область
30 травня 2025 №340314
Двокімнатна квартира в Києві, Деснянський район Київ - зображення 1
Двокімнатна квартира в Києві, Деснянський район Київ - зображення 2
Двокімнатна квартира в Києві, Деснянський район Київ - зображення 3
Двокімнатна квартира в Києві, Деснянський район Київ - зображення 4
Кімнат:
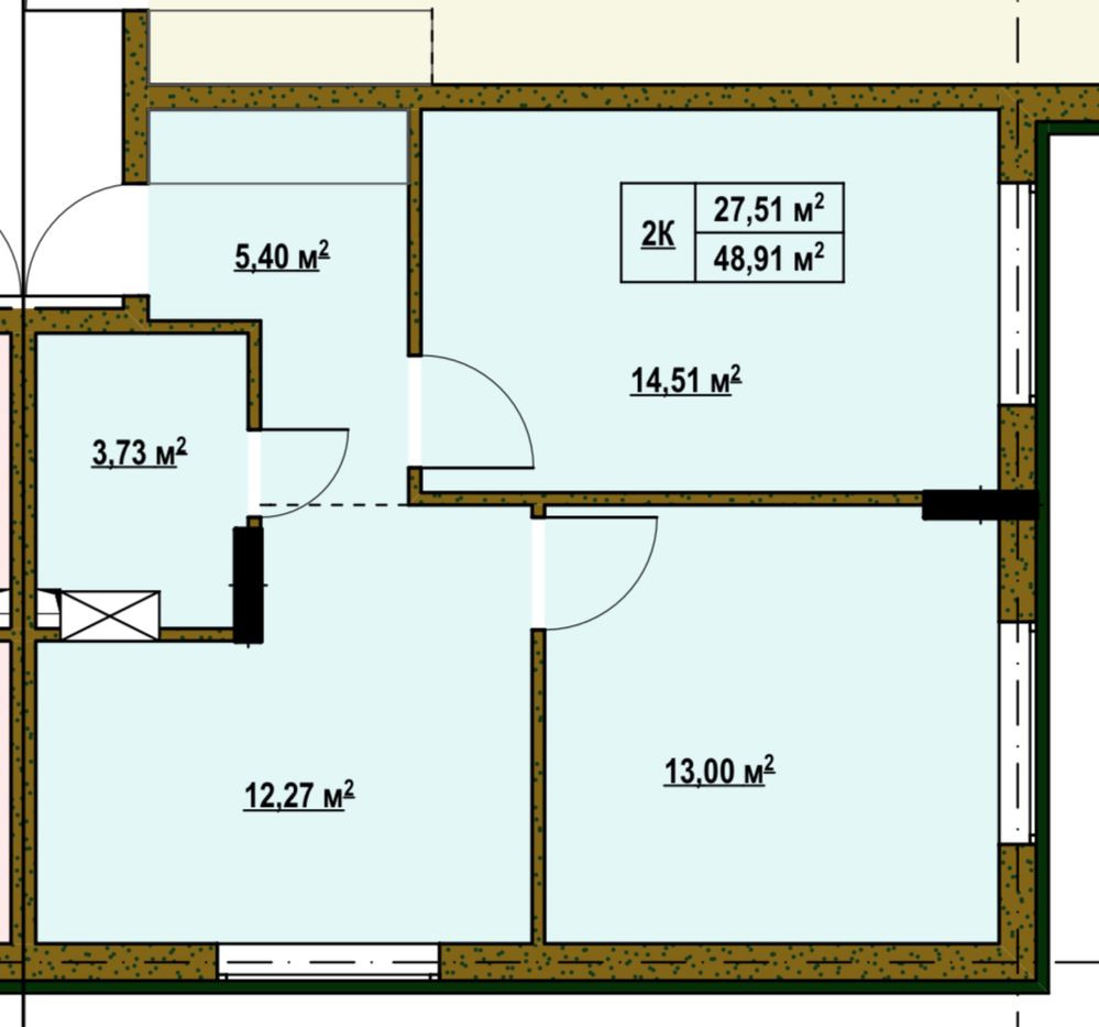
Загальна площа: 48.91 м²
Поверх:
Поверховість:
Опалення: Індивідуальне електро 
Назва ЖК: Family life  
ID: 888484922 
Продається повноцінна двокімнатна квартира 48,91 кв.м з дуже зручним та функціональним плануванням.
ЖК знаходиться за адресою: провулок Милославський 6, Деснянський район
До найближчої зупинки транспорту 5 хвилин пішки
Чудова транспортна розвʼязка
Поруч знаходиться дитячий садок, школа, магазини, медичні заклади та все необхідне для комфортного життя.
Будинок на етапі будівництва, заселення 3 квартал 26 року
Є можливість розтермінування, 50% перший внесок
Є різні пропозиції, за детальною інформацією звертайтесь за телефоном 07******77
Irina
Був у мережі 24 вересня 2025 10:00
Увійдіть або зареєструйтесь щоб залишити коментар.
$25 250
Зворотний дзвінок Связаться
Irina
Був у мережі 24 вересня 2025 10:00
Наверх