Продаж 1 - к квартири в ЖК Dibrova park $60 000

Продаж 1 - к квартири в ЖК Dibrova park

Київ, Київська область
4 квітня 2025 №324118
Продаж 1 - к квартири в ЖК Dibrova park Київ - зображення 1
Продаж 1 - к квартири в ЖК Dibrova park Київ - зображення 2
Продаж 1 - к квартири в ЖК Dibrova park Київ - зображення 3
Продаж 1 - к квартири в ЖК Dibrova park Київ - зображення 4
Кімнат:
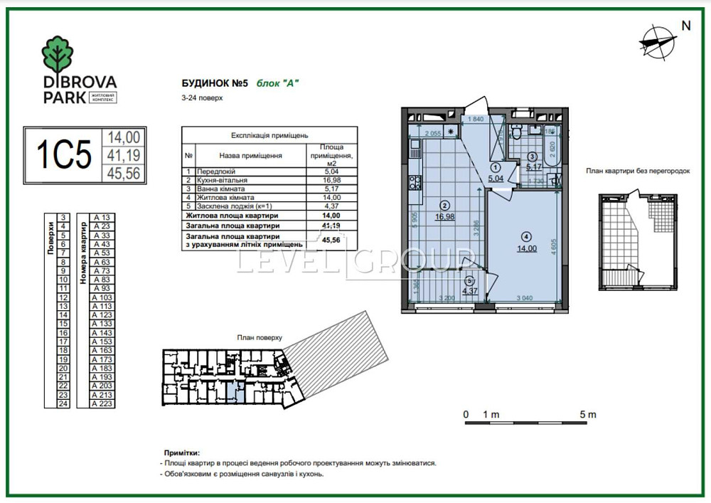
Загальна площа: 45.56 м²
Поверх: 18 
Поверховість: 25 
Опалення: Власна котельня 
Назва ЖК: Dibrova park  
ID: 880774198 
Продаж 1-кімнатної квартири в ЖК «Діброва Парк»

Перепоступка!

Ідеально для комфортного життя однієї людини або пари.
Простора кухня-вітальня для відпочинку та гостей.
Лоджія для релаксу чи робочого простору.

Близькість до ТРЦ Retroville та інших ЖК (Варшавський, Сирецькі сади, Місто квітів).
Даніїл
Був у мережі 24 вересня 2025 10:00
Увійдіть або зареєструйтесь щоб залишити коментар.
$60 000
Зворотний дзвінок Связаться
Даніїл
Був у мережі 24 вересня 2025 10:00
Наверх