Варшавський Плюс, 90м2, 0% (+Паркінг, комора) $105 000

Варшавський Плюс, 90м2, 0% (+Паркінг, комора)

Київ, Київська область
10 лютого 2025 №305525
Варшавський Плюс, 90м2, 0% (+Паркінг, комора) Київ - зображення 1
Кімнат:
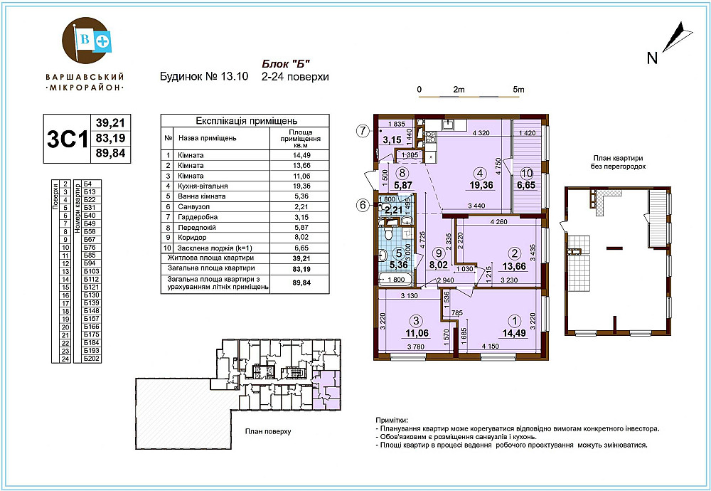
Загальна площа: 90 м²
Поверх: 14 
Поверховість: 24 
Назва ЖК: Варшавський Плюс  
ID: 876113527 
Продається квартира 90м2.
Будинок 13.10 по Виговського 40/12.

В будинку є генератор на водопостачання та ліфт (вже оплачено).

Інфраструктура:

ТРЦ Retroville, аптеки, ресторани, спортзали, різні заклади, лікарні, заправка, парк, синє озеро.

Окремо продається паркомісце поруч з будинком та комора.
Саша
Був у мережі 24 вересня 2025 10:00
Увійдіть або зареєструйтесь щоб залишити коментар.
$105 000
Зворотний дзвінок Связаться
Саша
Був у мережі 24 вересня 2025 10:00
Наверх