Продаж 1кім вул. Вулецька новобуд $35 700

Продаж 1кім вул. Вулецька новобуд

вул. Вулецька новобуд, Львів, Львівська область на мапі
17 грудня 2024 №284091
Продаж 1кім вул. Вулецька новобуд Львів - зображення 1
Продаж 1кім вул. Вулецька новобуд Львів - зображення 2
Кімнат:
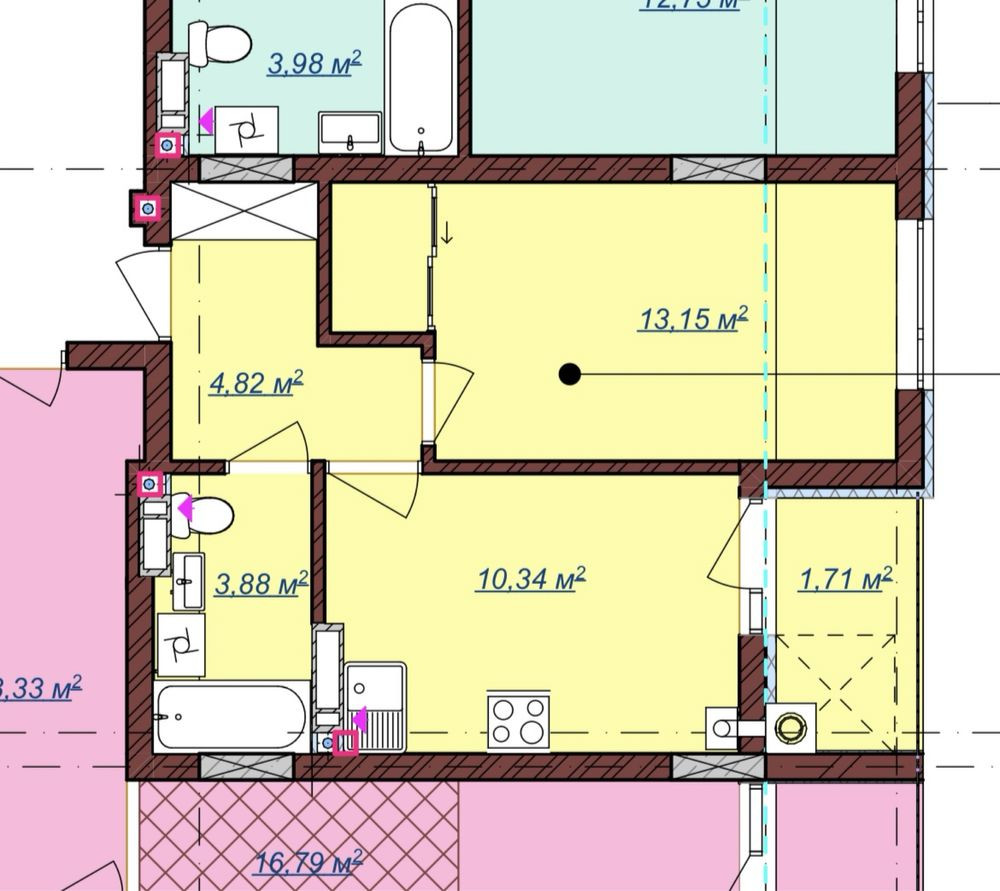
Загальна площа: 34 м²
Поверх:
Поверховість:
Опалення: Індивідуальне газове 
ID: 867559307 
Продається 1кім квартира в новобудові від забудовника Новий Львів ЖК Вулецька /Горішній. Комфортний 4 поверх 5-ти поверхового цегляного будинку з підземним паркінгом та ліфтом. Площа 33,9кв.м., кухня 10кв.м, кімната 13кв.м., не кутова, індивідуальне опалення, здача 4кв 2024р, ведуться активні роботи. Продаж по переуступці, ціна 35700$. Пропозиція від ріелтора, детальніше за телефоном.
Галина
Був у мережі 24 вересня 10:00
Увійдіть або зареєструйтесь щоб залишити коментар.
$35 700
Зворотний дзвінок Связаться
Галина
Був у мережі 24 вересня 10:00
Расположение
вул. Вулецька новобуд, Львів, Львівська область
Наверх