ЖК Львівський Затишок Продаж 1К 32.1м Більше 3 років $32 980

ЖК Львівський Затишок Продаж 1К 32.1м Більше 3 років

вулицею, Софиевская Борщаговка, Киевская область на карте
2 апреля 2025 №323231
ЖК Львівський Затишок Продаж 1К 32.1м  Більше 3 років Софиевская Борщаговка - изображение 1
ЖК Львівський Затишок Продаж 1К 32.1м  Більше 3 років Софиевская Борщаговка - изображение 2
ЖК Львівський Затишок Продаж 1К 32.1м  Більше 3 років Софиевская Борщаговка - изображение 3
ЖК Львівський Затишок Продаж 1К 32.1м  Більше 3 років Софиевская Борщаговка - изображение 4
ЖК Львівський Затишок Продаж 1К 32.1м  Більше 3 років Софиевская Борщаговка - изображение 5
ЖК Львівський Затишок Продаж 1К 32.1м  Більше 3 років Софиевская Борщаговка - изображение 6
ЖК Львівський Затишок Продаж 1К 32.1м  Більше 3 років Софиевская Борщаговка - изображение 7
ЖК Львівський Затишок Продаж 1К 32.1м  Більше 3 років Софиевская Борщаговка - изображение 8
Комнат:
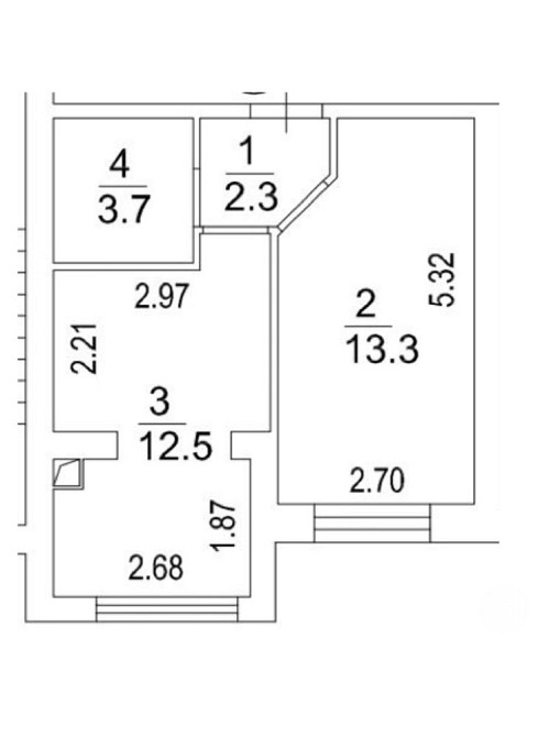
Общая площадь: 32.1 м²
Этаж:
Этажность дома:
Отопление: Индивидуальное газовое 
Название ЖК: ЖК Львівський Затишок  
ID: 881399877 
Більше трьох років як будинок заселений. Документам на квартиру теж більше 3 років
Витрати по оформленню орієнтовно будуть 900$
Квартира знаходиться на високому першому поверсі на східну сторону будинку
Можна під Є ОСЕЛЮ, ВСІ ПРОГРАМИ..
Вартість квартири 33000уе+ оформлення
Квартира має кухню. яка поділена на зону їдальні і робочу зону
При Вашому заселенні в квартиру будуть:
- Броньовані вхідні металеві двері 1.5 МДФ накладками ззовні;
- Стяжка на підлозі лазерна і штукатурка на стінахз маяками повністю по всій квартирі з кутиками;
- Всі стіни квартири з сусідами і з вулицею – ЦЕГЛА 380см і утеплення пінопласт/мінвата 130см;
- Перекриття між поверхами залізо-бетонний моноліт товщиною 200см + лазерна стяжка 7см;
- Висота потолка зі стяжкою в готовому вигляді 2.76см;
- Панорамні пластикові вікна ( 2 камери склопакет, 5 камер профіль);
- ЕЛЕКТРИКА ПОВНІСТЮ РОЗВЕДЕНА ПО КВАРТИРІ;
- ЛІЧИЛЬНИКИ газ/світло/вода встановлені і опломбовані;
- Котел “Hi therm” Optimus 2- контурний і радіатори металеві стальні;
- ТЕПЛА ПІДЛОГА ВИВЕДЕНА , гаряча та холодна вода в санвузлі і на кухні;
- Інтернет, кабельне телебачення та омофон – заведнені в квартиру.

ВАШ МЕНЕДЖЕР по комплексу від забудовника Тетяна
ДОПЛАТ ДОДАТКОВИХ НІЯКИХ НЕМАЄ
ТЕТЯНА
Был онлайн 24 сентября 2025 10:00
Зарегистрируйтесь или авторизуйтесь чтобы оставить комментарий.
$32 980
Обратный звонок Связаться
ТЕТЯНА
Был онлайн 24 сентября 2025 10:00
Расположение
вулицею, Софиевская Борщаговка, Киевская область
Наверх