ВЛАСНИК! Подаю квартиру ЖК ПАРК АРЕНА $44 000

ВЛАСНИК! Подаю квартиру ЖК ПАРК АРЕНА

Вул. Стрийська 121, Зубра, Львівська область на мапі
22 грудня 2024 №285780
ВЛАСНИК! Подаю квартиру  ЖК ПАРК АРЕНА Зубра - зображення 1
ВЛАСНИК! Подаю квартиру  ЖК ПАРК АРЕНА Зубра - зображення 2
ВЛАСНИК! Подаю квартиру  ЖК ПАРК АРЕНА Зубра - зображення 3
Кімнат:
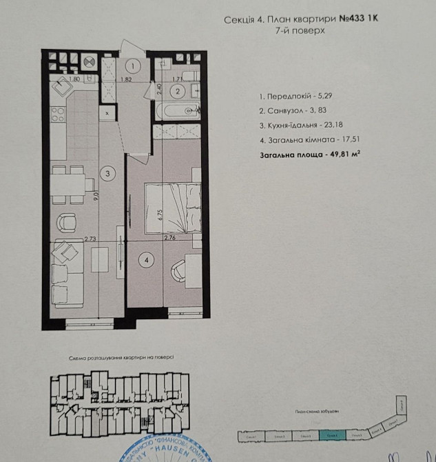
Загальна площа: 49.81 м²
Поверх:
Поверховість: 10 
Опалення: Індивідуальне газове 
Назва ЖК: ЖК Парк Арена  
ID: 869267798 
Квартира знаходиться в 4й секції, поверх 7 (к. 433), однокімнатна

Вул. Стрийська 121 ( Арена Львів)
Соломія
Був у мережі 24 вересня 10:00
Увійдіть або зареєструйтесь щоб залишити коментар.
$44 000
Зворотний дзвінок Связаться
Соломія
Був у мережі 24 вересня 10:00
Расположение
Вул. Стрийська 121, Зубра, Львівська область
Наверх