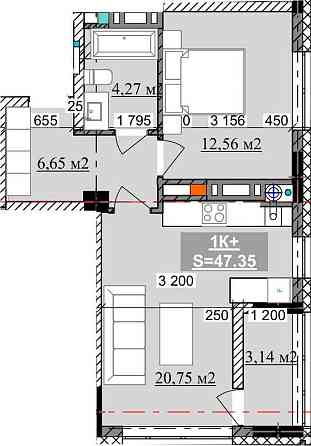
Продаж Квартир в Крихівці

Наверх